Data și locul de desfășurare a fiecărui modul de formare profesională continuă se va anunța după înscrierea numărului minim de cursanți si va fi comunicat prin email.
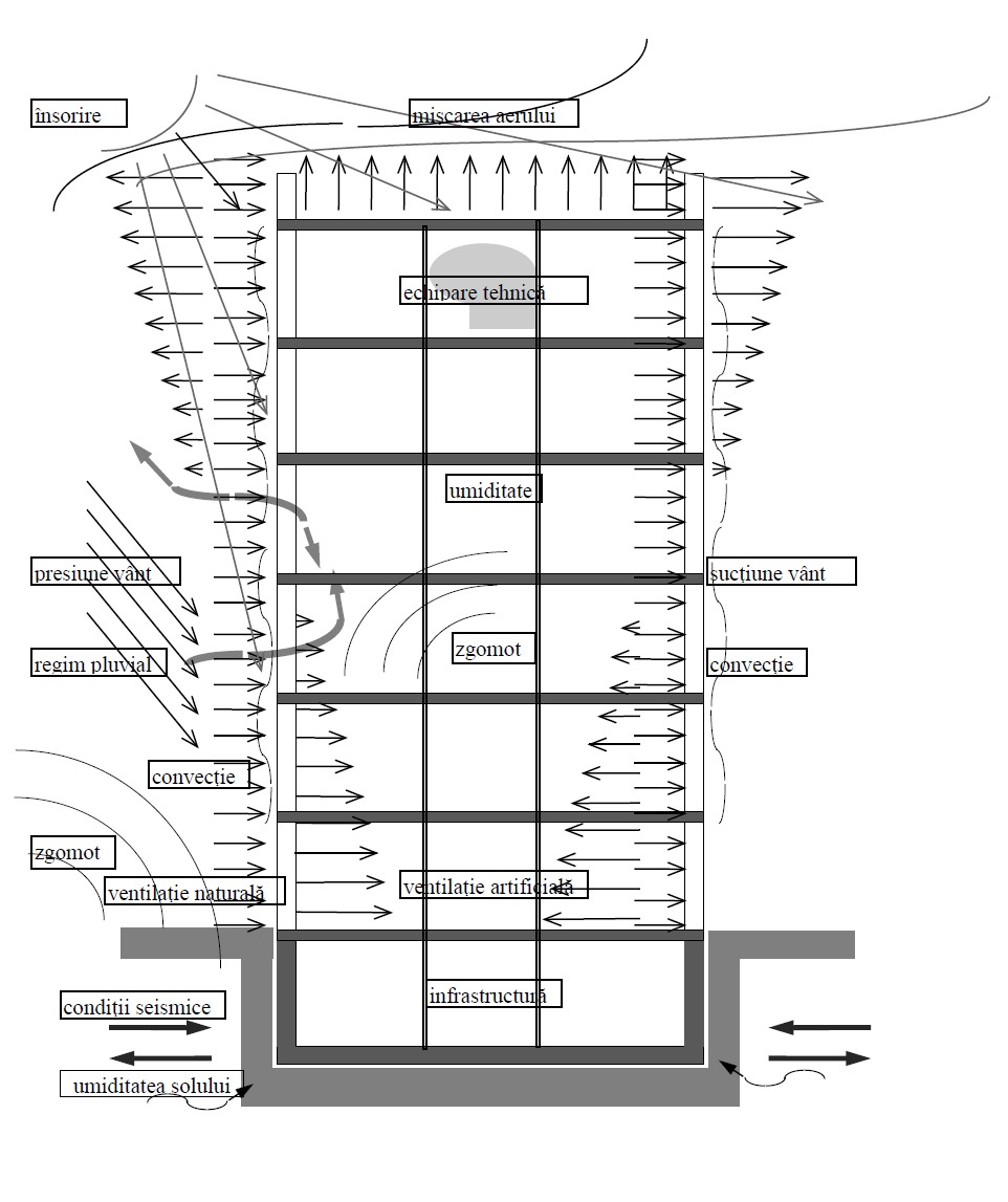
Am auzit nu o dată, studenții zicând ”Aoleu! Abia am scăpat de Fizica din liceu!” E Fizică dar se referă exclusiv la implicațiile și interdependența cu clădirile: trăim pe o planetă însorită, guvernată de legile naturii pe care le-am încadrat în științe ale naturii: fizică, chimie, biologie... și marea artă nu e să sfidăm natura ci să știm cum să gândim conceptul, folosindu-ne de legile Naturii. Cu alte cuvinte, să luăm Natura partener în demersul de a proiecta. De aceea trebuie să cunoaștem fizica. Clădirilor.
Pentru a oferi cea mai bună experiență, folosim tehnologii, cum ar fi cookie-uri, pentru a stoca și/sau accesa informațiile despre dispozitive. Consimțământul pentru aceste tehnologii ne permite să procesăm date, cum ar fi comportamentul de navigare sau ID-uri unice pe acest site. Dacă nu îți dai consimțământul sau îți retragi consimțământul dat poate avea afecte negative asupra unor anumite funcționalități și funcții.
Funcționale
Mereu activ
Stocarea tehnică sau accesul este strict necesară în scopul legitim de a permite utilizarea unui anumit serviciu cerut în mod explicit de către un abonat sau un utilizator sau în scopul exclusiv de a executa transmiterea unei comunicări printr-o rețea de comunicații electronice.
Preferințe
Stocarea tehnică sau accesul este necesară în scop legitim pentru stocarea preferințelor care nu sunt cerute de abonat sau utilizator.
Statistici
Stocarea tehnică sau accesul care sunt utilizate exclusiv în scopuri statistice.Stocarea tehnică sau accesul care sunt utilizate exclusiv în scopuri statistice anonime. Fără o citație, conformitatea voluntară din partea Furnizorului tău de servicii de internet sau înregistrările suplimentare de la o terță parte, informațiile stocate sau preluate numai în acest scop nu pot fi utilizate de obicei pentru a te identifica.
Marketing
Stocarea tehnică sau accesul este necesară pentru a crea profiluri de utilizator la care trimitem publicitate sau pentru a urmări utilizatorul pe un site web sau pe mai multe site-uri web în scopuri de marketing similare.